建築家・矢橋 徹さんが手がけた、
都市型住宅の新提案

Amazonギフトカード5,000円分
WEB予約のお客様限定でギフトカード進呈
事前ご予約いただきアンケートにご協力いただいた方を対象に、新規ご来場特典をご用意しております。
特典内容は、Aamazonギフトカードと間取りの参考書をプレゼントさせていただきます。


南側近接建物による
「日照阻害」と「圧迫感」
南側にマンションが建っているため、
影になりやすく日差しが届きにくい。
隣戸(マンション共用部)
からの「外部視線」
マンションの共用廊下に面しているため、
上からの視線が気になりやすい。
ロードサイド特有の
「環境過多(視認性と騒音)」
交通量の多い道路沿いで目立つため、
外からの視線や騒音が入りやすい。

そんな理想をすべて叶えたのが、
都市型住宅の新提案
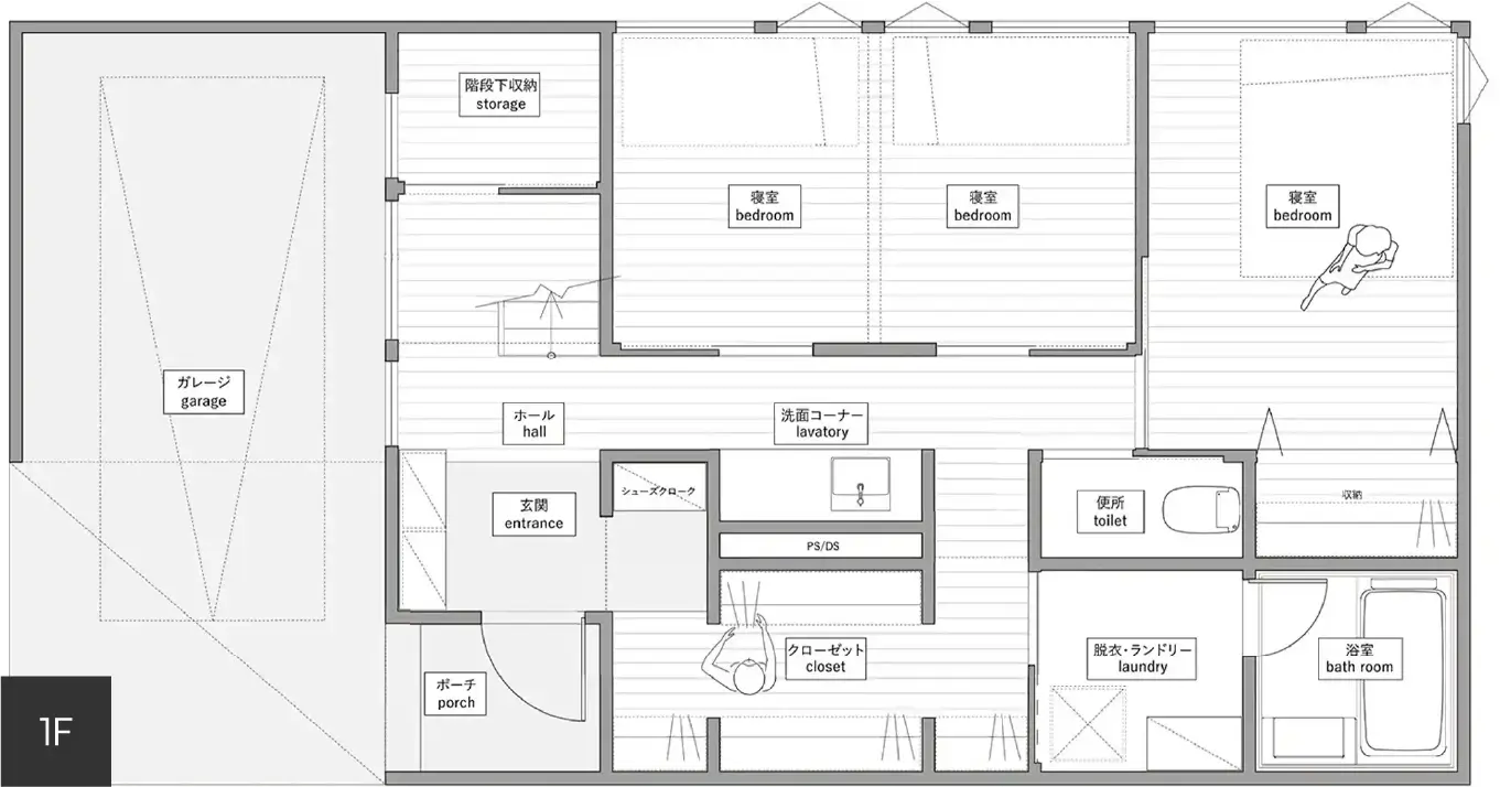
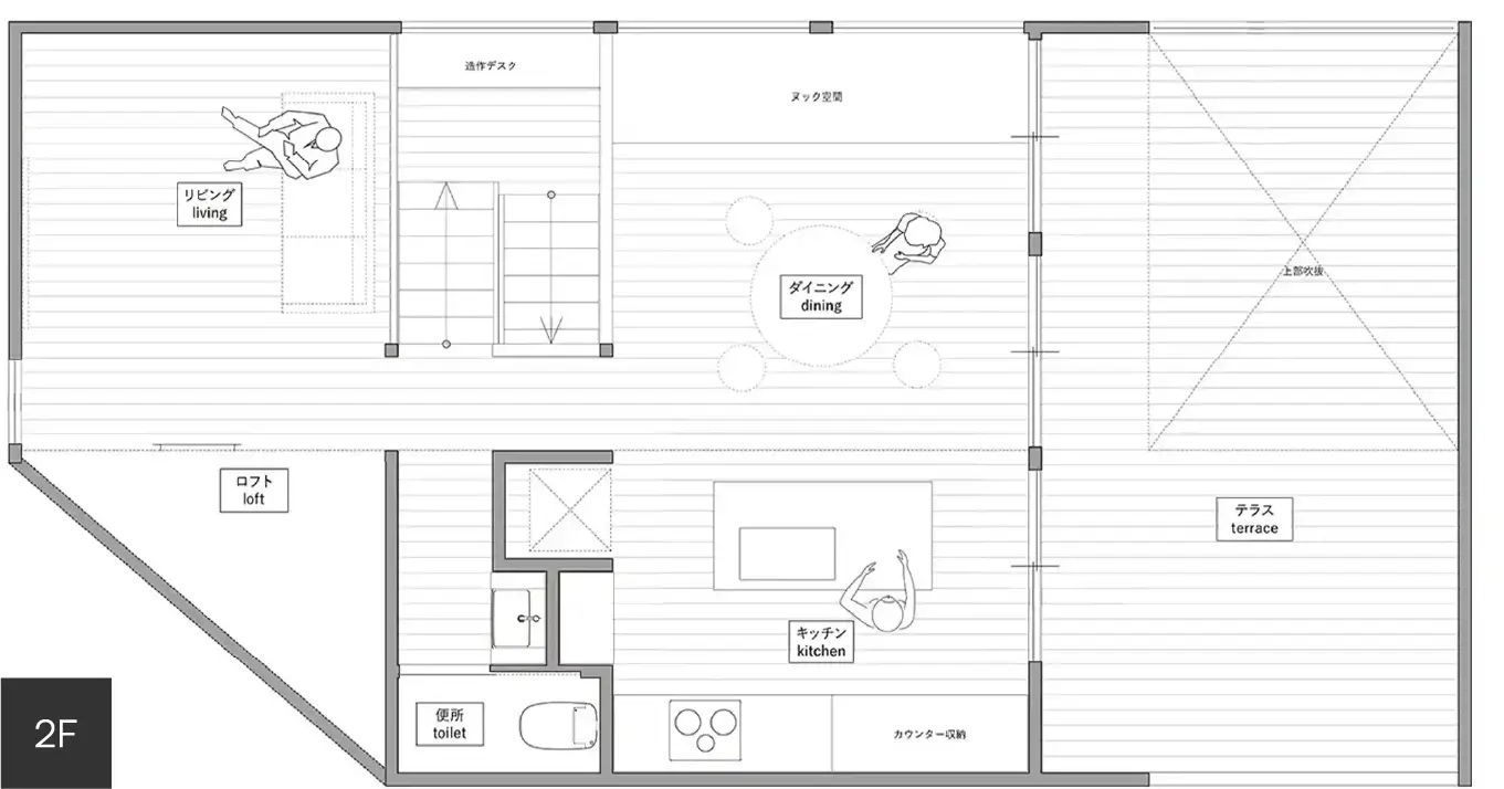
2024年6月に誕生した安城市の幹線道路沿いの新築戸建て住宅。
日本と北欧のいいところを合わせたジャパンディスタイルの住宅。
光と視線を巧みに操ることで、
開放感とプライバシーを両立した空間を実現した、
アーバンなライフスタイルに最適な住宅です。


| 敷地面積 | 145.73㎡ (44.08坪) |
|---|---|
| 延床面積 | 117.79㎡ (35.63坪) |
| UA値(断熱性能) | 0.42 |
|---|---|
| C値(気密性能) | 0.35 |
建築家・矢橋 徹さんが手がけた、
都市型住宅の新提案

Amazonギフトカード5,000円分
WEB予約のお客様限定でギフトカード進呈
事前ご予約いただきアンケートにご協力いただいた方を対象に、新規ご来場特典をご用意しております。
特典内容は、Aamazonギフトカードと間取りの参考書をプレゼントさせていただきます。


当社がご提供するのは、アトリエ建築家による設計で、デザイン・高機能・コスト・快適性を備えたオーダーメイドの注文住宅です。ライフプランを見据えた住まいを、無駄な工数や仕入れを徹底削減することで、適正価格でご提案しています。長く快適に暮らせる住まいを、設計力と合理的なコスト管理でご提供いたします。
建築家のこだわり

敷地の制約を「あきらめる理由」ではなく、この家だけの「個性を生むヒント」として捉え直しました。光を追いかけ、視線をかわし、余白を楽しむ。そんな、都市型のロードサイドだからこそ実現できた、閉じつつ開かれた豊かな住まいのご提案です。

インテリアコーディネーターの
こだわり

日本の侘び寂びと北欧のヒュッゲ。時代や国境を越えて愛される価値観に共通するのは、“本質的な心地よさ”。無彩色の静かな空間に自然素材とアースカラーを重ね、凛とした美しさと穏やかな温もりを両立しました。住むほどに価値を深める、タイムレスな一邸です。


家族が生活する住まいにとって、デザイン的に優れていることやコストパフォーマンスが高いことは確かに大切です。しかし、もっともこだわるべきなのは家族がいつまでも安心して快適に過ごせることではないでしょうか。安心して快適に過ごすためのさまざまな条件を満たすのが、「RIKYU(リキュー)」の注文住宅です。

満足できる理想の家が完成しても、家づくりはそれで終わりではありません。ご家族の新しい暮らしはそこからが本当のスタートです。私たちと施主様とのお付き合いも、そこから長く続いていきます。住まいの点検やメンテナンス、将来のリフォームのご相談まで、安心してお任せいただける体制を整えています。
長期保証制度
(最長60年)
建物
長期保証
住宅設備
保証
防蟻保証
オーガニック地盤保証
建築家・矢橋 徹さんが手がけた、
都市型住宅の新提案

Amazonギフトカード5,000円分
WEB予約のお客様限定でギフトカード進呈
事前ご予約いただきアンケートにご協力いただいた方を対象に、新規ご来場特典をご用意しております。
特典内容は、Aamazonギフトカードと間取りの参考書をプレゼントさせていただきます。
